top of page

CAMBRONNE

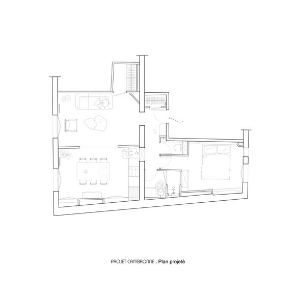
/ mission esquisse

Type

Mission de conception pour la rénovation complète d'un appartement de 52m² .

Surface

52 m²

Lieu

Paris 15e

Date

2021

Statut

Livré

  • Instagram
  • Facebook - Black Circle

© Photos Lucille Mazy

Envie de discuter d'un projet ?

Ordre des architectes : 088381 

Mutuelle des architectes français : 68846/H/110

Retrouvez l'actualité de multiplle sur

instagram, facebook

  • Instagram
  • Facebook - Black Circle

 © 2020 by multiplle studio

bottom of page